KWADACHA EMERGENCY RESPONSE + LEARNING CENTRE
The Kwadacha Emergency Response and Adult Learning Centre is designed foremost to provide essential services to a remote community.
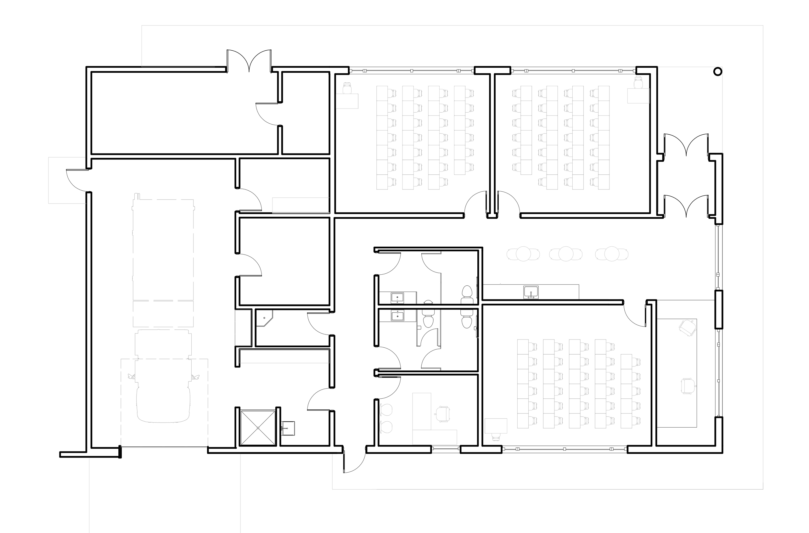
This building is made up of two separate facilities: the Emergency Response portion houses a vehicle bay, gear room, and tool room. The Adult Learning Centre houses reception, three classrooms, a lounge area, washrooms, and an office. The purpose of this building is to both provide emergency services through volunteers as well as a place to host for continuing education of the community.
Designed to highlight its tough, low-maintenance finishes, this building and features high-performance fiberglass windows.



