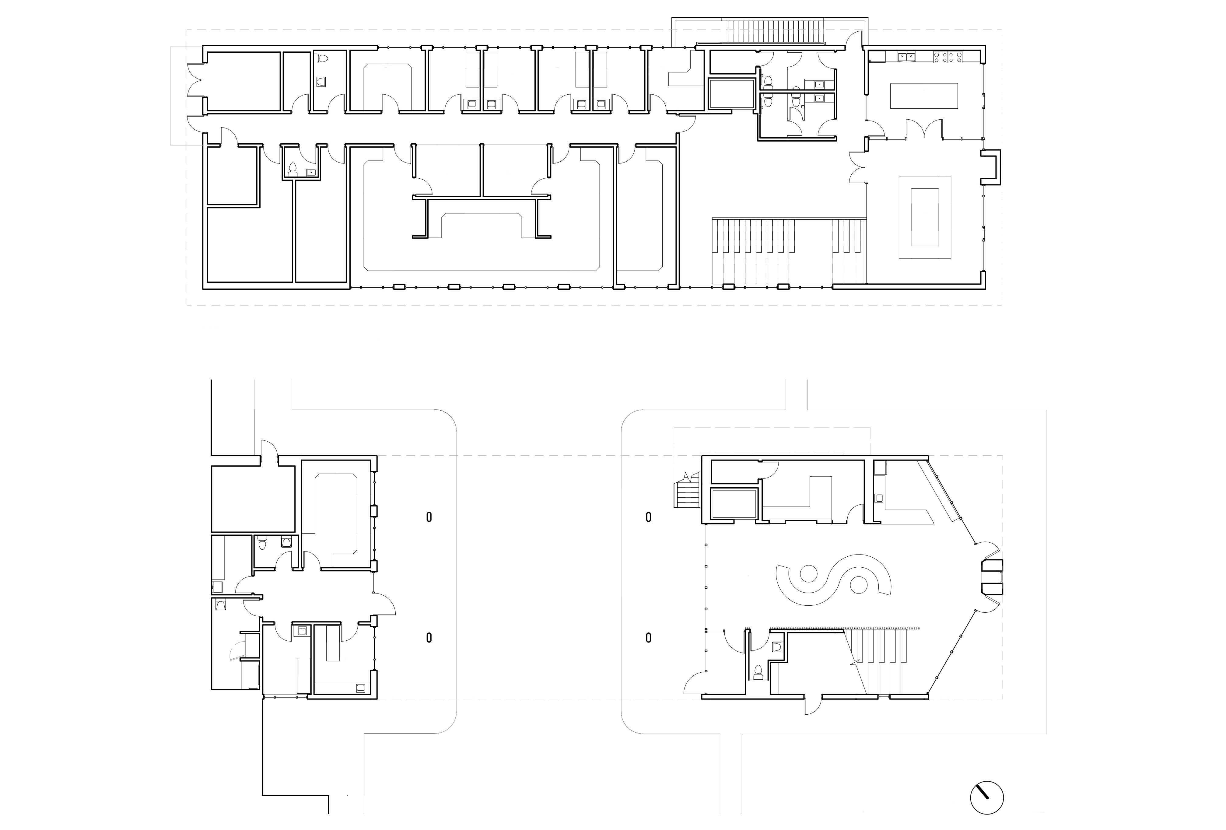
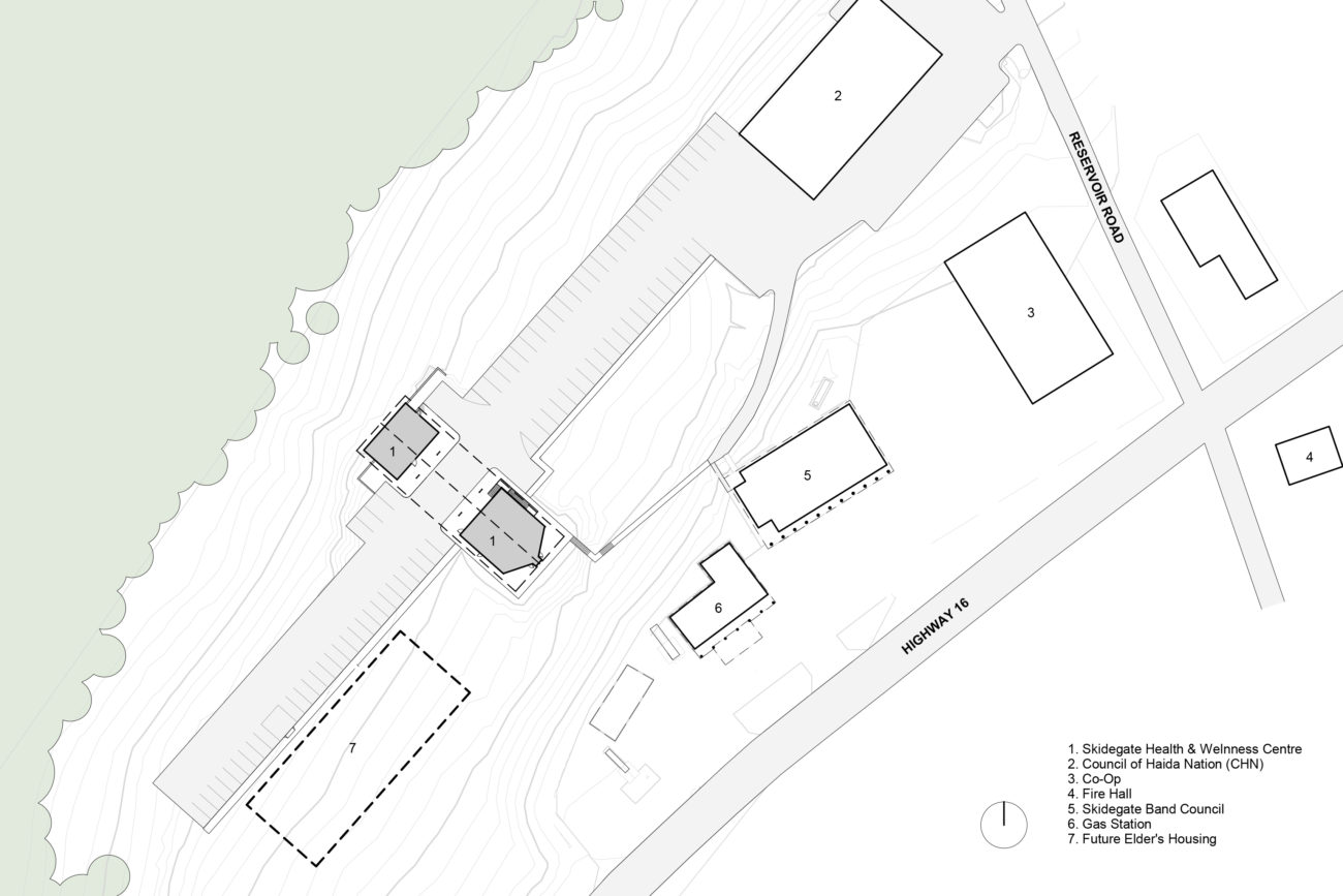
SKIDEGATE HEALTH AND WELLNESS CENTRE
Inspired by the traditional Haida longhouses, the Skidegate Health and Wellness Centre designed for the Skidegate Band looks out over the Pacific Ocean. This two-storey 9,500 sf Health facility’s focus is on primary care and traditional healing, rather than acute care. Modeled after the NUKA system of care, this service-oriented centre is transforming health care delivery on Haida Gwaii. Health provider spaces have been designed to promote collaboration and cross pollination among medical professionals. The project is completed in May 2022.





