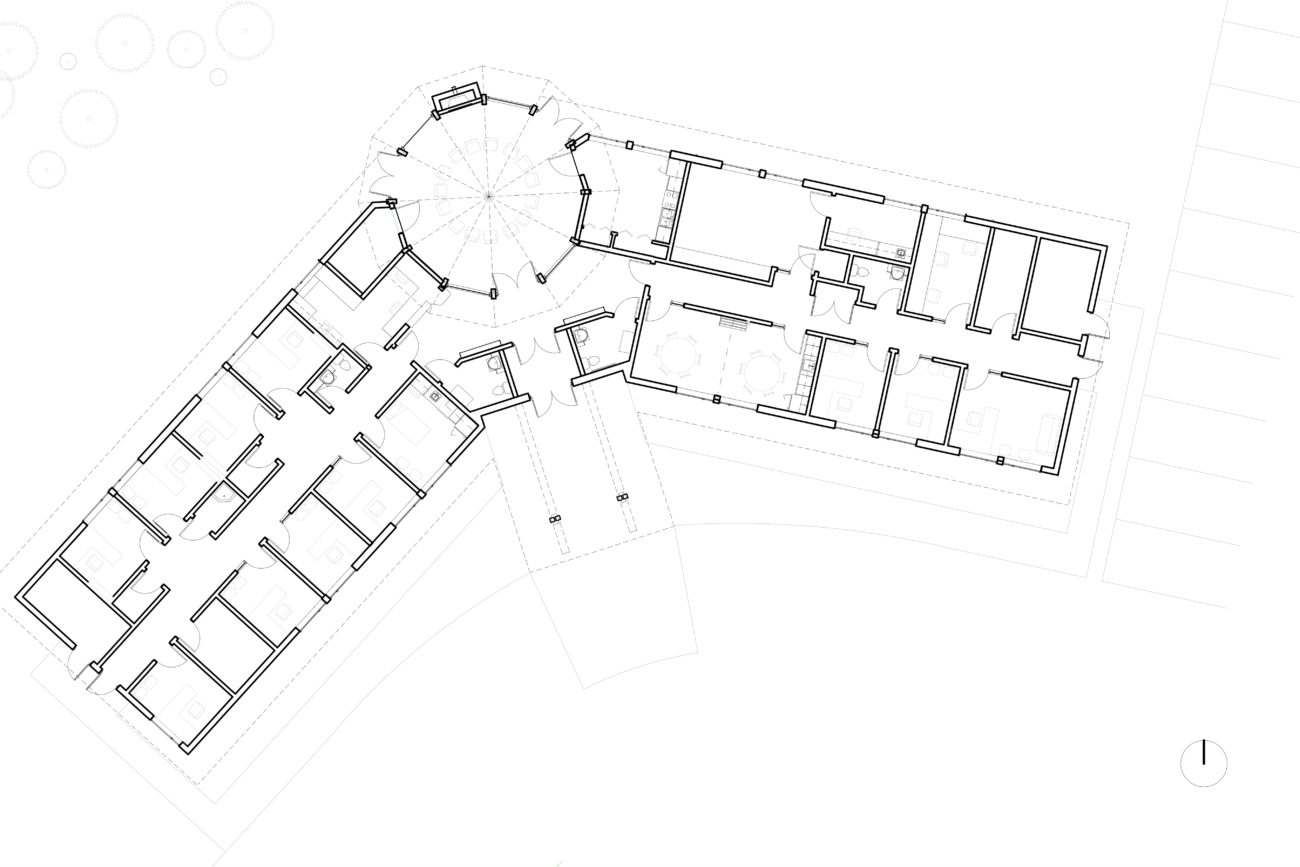
TL’KE’MTSIN COMMUNITY HEALTH CENTRE

Situated in Lytton, BC an overlooking the Fraser river, Lytton First Nation Health Centre hosts visiting professionals, nurses, exams and dental room. The design of the community health room features high ceiling and clerestory windows to bring in natural light to the space as well as to celebrate the cultural and traditional form of the pithouse. Completed in 2015, the facility is designed in close collaboration with the Lytton First Nation Community, including Chief, Council, Health committee and community members to reflect their vision of  Health and Wellness.