TS'KW'AYLAXW FIREHALL
Located at Marble Canyon BC., the proposed Ts’kw’aylaxw Fire Hall is intended to provide direct firefighting services for the Ts’kw’aylaxw First Nation community at Marble Canyon Indian Reserve #3. The existing Firehall at the main village (Pavilion IR#1) has a limited-service zone and long time response to reach the quickly developing Marble Canyon subdivisions, where many community members are moving.
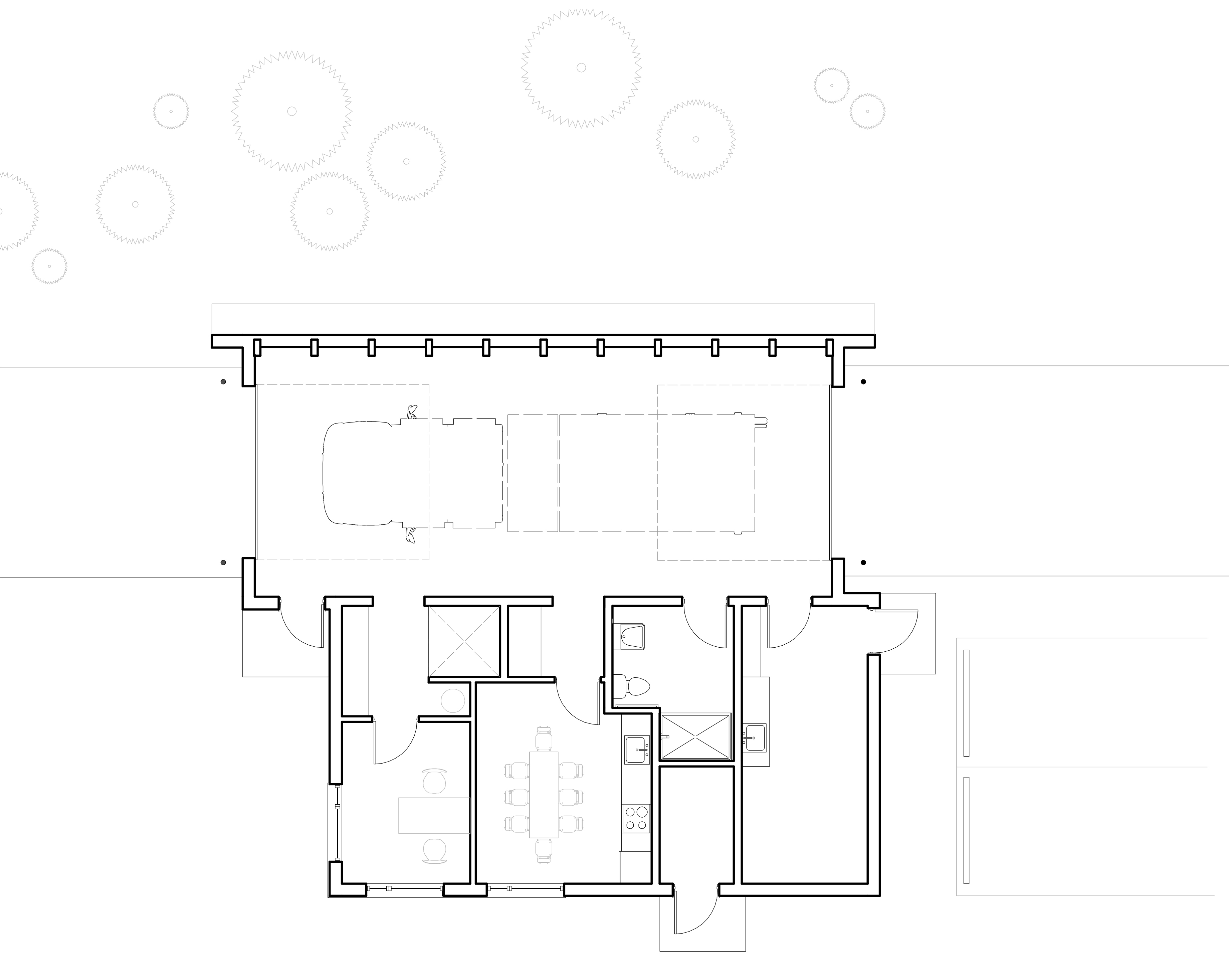
This wood-framed firefighting facility will be used on a volunteer basis when service is required. For ease of use, the single-vehicle bay features two vehicle entrance doors, one for entry and another for exiting. It features an exposed wood post and beam structure and plywood finishes, and the space is well lit from both clerestory windows and overhead door vision panels. The exterior cladding and roofing will be finished with vertical metal siding for durability and ease of maintenance.

